Vendita Appartamento a Cervia - Rif. TM173a

Cervia centro | 540.000,00 | Mq 110 | 3 | 2

Descrizione

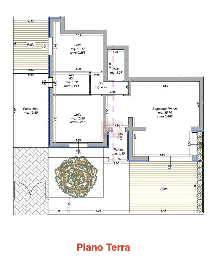
CERVIA CENTRO (TM173a): soluzione ideale per chi desidera un immobile in zona balneare a meno di 200 metri dal mare. In piccola palazzina di sole 4 unità, proponiamo APPARTAMENTO al PIANO TERRA con INGRESSO INDIPENDENTE e così composto: zona giorno open-space di 35 mq con angolo cottura e con accesso a portico con giardino privato, disimpegno, 2 camere da letto (mq 15 e mq 13), 2 bagni, posto auto di proprietà. Classe energetica A2, cappotto esterno, impianto fotovoltaico e riscaldamento a pavimento. N.B.1: OTTIMO LIVELLO DI RIFINITURE. --- N.B.2: Le presenti informazioni non costituiscono elemento contrattuale.

Dettagli

  • Riferimento: TM173a
  • Tipologia: Appartamento
  • Comune: Cervia
  • Zona: Cervia centro
  • Cucina: Angolo cottura
  • Camere: 2
  • Bagni: 2
  • Box: Nessuno
  • Piano: Terra di 2
  • Anno costruzione: 2023
  • Stato conservazione: Ristrutturato
  • Stato: Libero
  • Spese cond. annue €:
  • Riscaldamento: Autonomo
  • Caratteristiche

    Giardino di proprietà 30 mq

    Efficienza energetica

    Classe A+

    Localizzazione - Cervia

    Richiedi informazioni

    Via Polenta, 26)

    47521 Cesena (FC)

    0547.631708

    Vendite     Affitti

    Ai sensi e per gli effetti degli articoli 13 e 6 del Regolamento UE 2016/679, dichiaro di aver preso visione dell’informativa di Agenzia Globo di Garavelli Gianni & C. Sas per il trattamento dei dati personali.

    Via Polenta, 26 - 47521 Cesena (FC) - Telefono 0547.631708 - Email info@agenziaimmobiliareglobo.it


    Vendita Appartamento a Cervia - Rif. TM173a

    3 | Mq 110 | 540.000,00

    Cervia

    CERVIA CENTRO (TM173a): soluzione ideale per chi desidera un immobile in zona balneare a meno di 200 metri dal mare. In piccola palazzina di sole 4 unità, proponiamo APPARTAMENTO al PIANO TERRA con INGRESSO INDIPENDENTE e così composto: zona giorno open-space di 35 mq con angolo cottura e con accesso a portico con giardino privato, disimpegno, 2 camere da letto (mq 15 e mq 13), 2 bagni, posto auto di proprietà. Classe energetica A2, cappotto esterno, impianto fotovoltaico e riscaldamento a pavimento. N.B.1: OTTIMO LIVELLO DI RIFINITURE. --- N.B.2: Le presenti informazioni non costituiscono elemento contrattuale.

    Riferimento: TM173a

    Tipologia: Appartamento

    Comune: Cervia

    Zona: Cervia centro

    Cucina: Angolo cottura

    Camere: 2

    Bagni: 2

    Box: Nessuno

    Piano: Terra di 2

    Anno costruzione: 2023

    Stato conservazione: Ristrutturato

    Stato: Libero

    Spese cond. annue €:

    Riscaldamento: Autonomo

    Giardino di proprietà 30 mq

    Efficienza energetica
    Classe A+