Vendita Appartamento a Cesena - Rif. AC620h

Centro Urbano | 470.000,00 | Mq 172,5 | 5 | 2

Descrizione

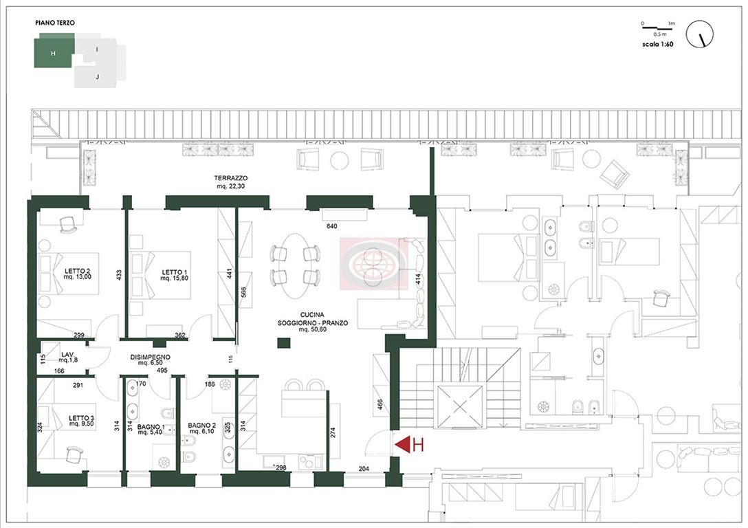
CESENA CENTRO URBANO ( AC620h ): Per gli amanti del centro città, in posizione strategica tra la stazione e il centro storico, è in fase di realizzazione la totale ristrutturazione di un palazzo di sette piani, con l' ambizioso intento di mantenere lo spirito del passato rivisitandolo in chiave moderna, più eco sostenibile e verde, senza snaturare alcune scelte stilistiche del suo primo progettista ( il futurista arch. Quirino De Giorgio ): la ceramica smaltata della facciata, ad esempio, vuole rappresentare un continuum e un tributo ai vecchi rivestimenti diamantati del progetto originale; il metallo bronzato, i legni e il verde di logge e balconi ne esalteranno l' eleganza; la tecnologia dei materiali impiegati e degli impianti completamente riprogettati lo renderanno un riferimento per l' abitare a Cesena. Questo progetto renderà il palazzo un giardino nel centro della città, uno spazio caldo e familiare, ma al tempo stesso verde e aperto; gli spazi esterni diventeranno elemento imprescindibile di una casa da vivere dentro e fuori. La posizione privilegiata, anche adiacente alle principali scuole cittadine e al centro commerciale Montefiore, permetterà ai futuri fortunati abitanti del palazzo, di avere tutto a portata di mano senza rinunciare ai comfort di una costruzione contemporanea. Il CAPITOLATO prevede la scelta tra 3 stili di rifiniture interne ( City, Comfort e Nature, nelle varianti chiaro e scuro ) e tra le caratteristiche salienti della struttura troviamo: riscaldamento a pavimento alimentato da pompa di calore centralizzata con conta calorie, raffrescamento a ventil alimentato con pompa di calore centralizzata, pannelli fotovoltaici ( 50 kw ripartiti tra le varie unità abitative ), cappotto termico, predisposizione allarme anti intrusione, irrigazine automatica fioriere, infissi in alluminio doppio o triplo vetro a secondo del progetto termico. L' APPARTAMENTO qui proposto è collocato al TERZO PIANO ( servito da ascensore ) ed i suoi spazi interni risultano così distribuiti: zona giorno open space di oltre 50 mq., n° 3 camere da letto ( 16+13+9 mq. ), 2 bagni, lavanderia, TERRAZZO di 22 mq.; completano la proprietà una cantina e un doppio posto auto coperto al prezzo di Euro 47.000. - NB1: BONUS RISTRUTTURAZIONE ( legge 20/12/2021 n° 234 ) pari al 25% sul 50% del prezzo, fino ad un massimo di 48.000 Euro, detraibile in 10 anni. - NB2: Possibilità di usufruire, con prezzi a partire da 1000 euro, di INTERIOR PACK SU MISURA ( progetto distribuzione spazi interni e scelta materiali, progetto illuminotecnico, progetto esecutivo arredi su misura, consulenza tecnica per elementi di arredo da appoggio, consulenza tecnica per accessori e oggettistica ). - NB3: le presenti informazioni non costituiscono elemento contrattuale.

Dettagli

  • Riferimento: AC620h
  • Tipologia: Appartamento
  • Comune: Cesena
  • Zona: Centro Urbano
  • Cucina: Cucina a vista
  • Camere: 3
  • Bagni: 2
  • Box: Posto auto coperto
  • Piano: 3° di 7
  • Anno costruzione:
  • Stato conservazione: Nuovo
  • Stato: In costruzione
  • Spese cond. annue €:
  • Riscaldamento: Centralizzato gest. autonoma
  • Caratteristiche

    Ascensore, Portineria, Balconi 22 mq, Cantina, Condizionatore, Predisposizione allarme

    Efficienza energetica

    Classe A

    Localizzazione - Cesena

    Richiedi informazioni

    Via Polenta, 26)

    47521 Cesena (FC)

    0547.631708

    Vendite     Affitti

    Ai sensi e per gli effetti degli articoli 13 e 6 del Regolamento UE 2016/679, dichiaro di aver preso visione dell’informativa di Agenzia Globo di Garavelli Gianni & C. Sas per il trattamento dei dati personali.

    Via Polenta, 26 - 47521 Cesena (FC) - Telefono 0547.631708 - Email info@agenziaimmobiliareglobo.it


    Vendita Appartamento a Cesena - Rif. AC620h

    5 | Mq 172,5 | 470.000,00

    Cesena

    CESENA CENTRO URBANO ( AC620h ): Per gli amanti del centro città, in posizione strategica tra la stazione e il centro storico, è in fase di realizzazione la totale ristrutturazione di un palazzo di sette piani, con l' ambizioso intento di mantenere lo spirito del passato rivisitandolo in chiave moderna, più eco sostenibile e verde, senza snaturare alcune scelte stilistiche del suo primo progettista ( il futurista arch. Quirino De Giorgio ): la ceramica smaltata della facciata, ad esempio, vuole rappresentare un continuum e un tributo ai vecchi rivestimenti diamantati del progetto originale; il metallo bronzato, i legni e il verde di logge e balconi ne esalteranno l' eleganza; la tecnologia dei materiali impiegati e degli impianti completamente riprogettati lo renderanno un riferimento per l' abitare a Cesena. Questo progetto renderà il palazzo un giardino nel centro della città, uno spazio caldo e familiare, ma al tempo stesso verde e aperto; gli spazi esterni diventeranno elemento imprescindibile di una casa da vivere dentro e fuori. La posizione privilegiata, anche adiacente alle principali scuole cittadine e al centro commerciale Montefiore, permetterà ai futuri fortunati abitanti del palazzo, di avere tutto a portata di mano senza rinunciare ai comfort di una costruzione contemporanea. Il CAPITOLATO prevede la scelta tra 3 stili di rifiniture interne ( City, Comfort e Nature, nelle varianti chiaro e scuro ) e tra le caratteristiche salienti della struttura troviamo: riscaldamento a pavimento alimentato da pompa di calore centralizzata con conta calorie, raffrescamento a ventil alimentato con pompa di calore centralizzata, pannelli fotovoltaici ( 50 kw ripartiti tra le varie unità abitative ), cappotto termico, predisposizione allarme anti intrusione, irrigazine automatica fioriere, infissi in alluminio doppio o triplo vetro a secondo del progetto termico. L' APPARTAMENTO qui proposto è collocato al TERZO PIANO ( servito da ascensore ) ed i suoi spazi interni risultano così distribuiti: zona giorno open space di oltre 50 mq., n° 3 camere da letto ( 16+13+9 mq. ), 2 bagni, lavanderia, TERRAZZO di 22 mq.; completano la proprietà una cantina e un doppio posto auto coperto al prezzo di Euro 47.000. - NB1: BONUS RISTRUTTURAZIONE ( legge 20/12/2021 n° 234 ) pari al 25% sul 50% del prezzo, fino ad un massimo di 48.000 Euro, detraibile in 10 anni. - NB2: Possibilità di usufruire, con prezzi a partire da 1000 euro, di INTERIOR PACK SU MISURA ( progetto distribuzione spazi interni e scelta materiali, progetto illuminotecnico, progetto esecutivo arredi su misura, consulenza tecnica per elementi di arredo da appoggio, consulenza tecnica per accessori e oggettistica ). - NB3: le presenti informazioni non costituiscono elemento contrattuale.

    Riferimento: AC620h

    Tipologia: Appartamento

    Comune: Cesena

    Zona: Centro Urbano

    Cucina: Cucina a vista

    Camere: 3

    Bagni: 2

    Box: Posto auto coperto

    Piano: 3° di 7

    Anno costruzione:

    Stato conservazione: Nuovo

    Stato: In costruzione

    Spese cond. annue €:

    Riscaldamento: Centralizzato gest. autonoma

    Ascensore, Portineria, Balconi 22 mq, Cantina, Condizionatore, Predisposizione allarme

    Efficienza energetica
    Classe A