Vendita Appartamento a Cesena - Rif. AC666a3

Martorano | 385.000,00 | Mq 141,55 | | 2

Descrizione

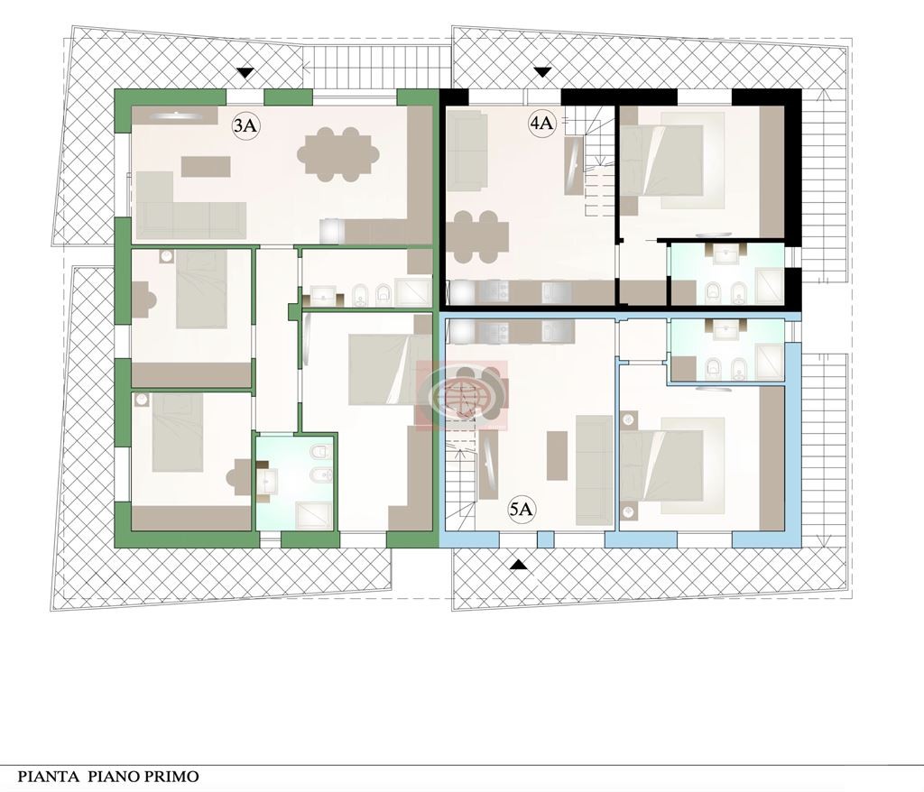
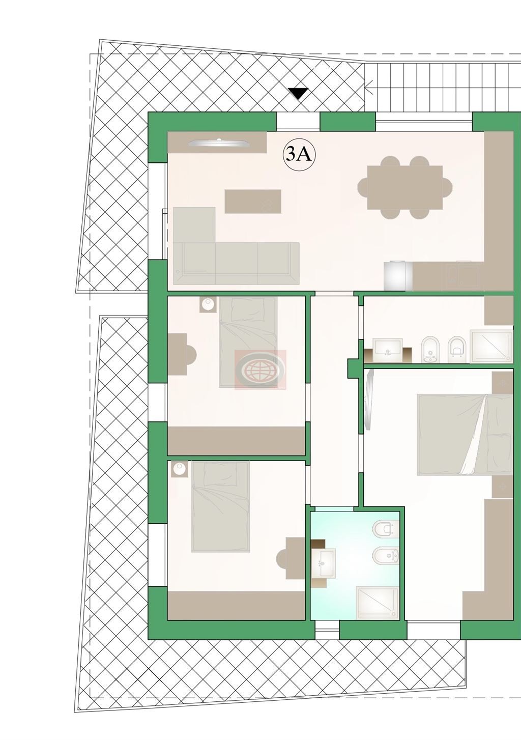
Cesena, Zona Martorano (AC666a2) appartamento in piccola palazzina residenziale con sole 6 unità di prossima costruzione.
L'appartamento è posto al piano primo con accesso da scala esterna indipendente ed è composto da ingresso su soggiorno con zona cottura a vista (mq 22), disimpegno, tre camere da letto, due bagni, due ampi balconi, garage al piano interrato e posto auto privato al piano terra.
La costruzione viene fatte con accorgimenti per mantenere un alto risparmio energetico. NO GAS, impianto fotovoltaico, riscaldamento a pavimento mediante pompa di calore, predisposizione climatizzazione, allarme. ottime le finiture interne. Ulteriori informazioni in ufficio.N.B. le presenti informazioni non costituiscono elemento contrattuale.

Dettagli

  • Riferimento: AC666a3
  • Tipologia: Appartamento
  • Comune: Cesena
  • Zona: Martorano
  • Cucina: Angolo cottura
  • Camere: 3
  • Bagni: 2
  • Box: Singolo
  • Piano: 1° di 2
  • Anno costruzione: 2025
  • Stato conservazione: Nuovo
  • Stato:
  • Spese cond. annue €:
  • Riscaldamento: Autonomo
  • Caratteristiche

    Balconi, Predisposizione condizionatore, Predisposizione allarme

    Efficienza energetica

    Classe A3

    Prestazione energetica del fabbricato inverno estate

    Localizzazione - Cesena

    Richiedi informazioni

    Via Polenta, 26)

    47521 Cesena (FC)

    0547.631708

    Vendite     Affitti

    Ai sensi e per gli effetti degli articoli 13 e 6 del Regolamento UE 2016/679, dichiaro di aver preso visione dell’informativa di Agenzia Globo di Garavelli Gianni & C. Sas per il trattamento dei dati personali.

    Via Polenta, 26 - 47521 Cesena (FC) - Telefono 0547.631708 - Email info@agenziaimmobiliareglobo.it


    Vendita Appartamento a Cesena - Rif. AC666a3

    | Mq 141,55 | 385.000,00

    Cesena

    Cesena, Zona Martorano (AC666a2) appartamento in piccola palazzina residenziale con sole 6 unità di prossima costruzione.
    L'appartamento è posto al piano primo con accesso da scala esterna indipendente ed è composto da ingresso su soggiorno con zona cottura a vista (mq 22), disimpegno, tre camere da letto, due bagni, due ampi balconi, garage al piano interrato e posto auto privato al piano terra.
    La costruzione viene fatte con accorgimenti per mantenere un alto risparmio energetico. NO GAS, impianto fotovoltaico, riscaldamento a pavimento mediante pompa di calore, predisposizione climatizzazione, allarme. ottime le finiture interne. Ulteriori informazioni in ufficio.N.B. le presenti informazioni non costituiscono elemento contrattuale.

    Riferimento: AC666a3

    Tipologia: Appartamento

    Comune: Cesena

    Zona: Martorano

    Cucina: Angolo cottura

    Camere: 3

    Bagni: 2

    Box: Singolo

    Piano: 1° di 2

    Anno costruzione: 2025

    Stato conservazione: Nuovo

    Stato:

    Spese cond. annue €:

    Riscaldamento: Autonomo

    Balconi, Predisposizione condizionatore, Predisposizione allarme

    Efficienza energetica
    Classe A3
    Prestazione energetica del fabbricato inverno estate