Vendita Appartamento a Gatteo - Rif. TC1110a2

Fiumicino | 279.000,00 | Mq 119,99 | 3 | 2

Descrizione

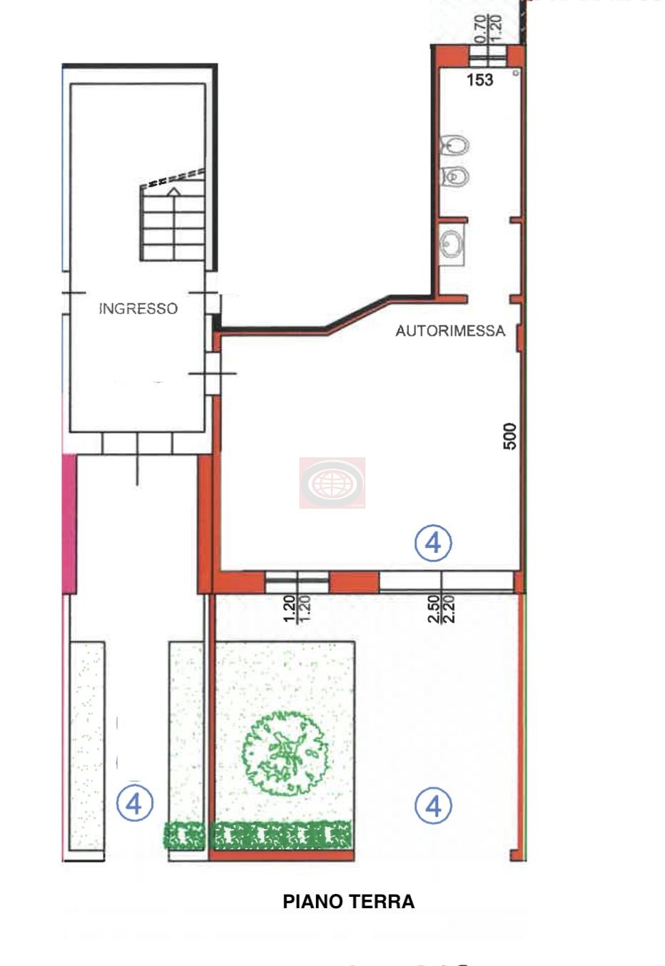
GATTEO (TC1110a2) - A 2 chilometri dall'Iper di Savignano, Appartamento con ingresso indipendente con corte esclusiva di mq 30. Al piano terra ampia autorimessa (39 mq) con wc. Al primo piano ampio soggiorno/pranzo con angolo cottura, disimpegno, bagno e due camere da letto. Ampi balconi su due lati. NO GAS, impianto fotovoltaico 3 Kw, riscaldamento a radianti a pavimento, predisposizione VMC localizzata (ricircolo dell'aria), predisposizione aspirazione centralizzata. Classe energetica A4. Ulteriori informazioni in ufficio. N.B.: le presenti informazioni non costituiscono elemento contrattuale.

Dettagli

  • Riferimento: TC1110a2
  • Tipologia: Appartamento
  • Comune: Gatteo
  • Zona: Fiumicino
  • Cucina: Cucina a vista
  • Camere: 2
  • Bagni: 2
  • Box: Triplo
  • Piano: Su più livelli di 2
  • Anno costruzione: 2026
  • Stato conservazione: Nuovo
  • Stato: In costruzione
  • Spese cond. annue €:
  • Riscaldamento: Autonomo
  • Caratteristiche

    Balconi 14 mq, Giardino di proprietà 30 mq, Predisposizione condizionatore, Predisposizione allarme

    Efficienza energetica

    Classe A4

    Prestazione energetica del fabbricato inverno estate

    Localizzazione - Gatteo

    Richiedi informazioni

    Via Polenta, 26)

    47521 Cesena (FC)

    0547.631708

    Vendite     Affitti

    Ai sensi e per gli effetti degli articoli 13 e 6 del Regolamento UE 2016/679, dichiaro di aver preso visione dell’informativa di Agenzia Globo di Garavelli Gianni & C. Sas per il trattamento dei dati personali.

    Via Polenta, 26 - 47521 Cesena (FC) - Telefono 0547.631708 - Email info@agenziaimmobiliareglobo.it


    Vendita Appartamento a Gatteo - Rif. TC1110a2

    3 | Mq 119,99 | 279.000,00

    Gatteo

    GATTEO (TC1110a2) - A 2 chilometri dall'Iper di Savignano, Appartamento con ingresso indipendente con corte esclusiva di mq 30. Al piano terra ampia autorimessa (39 mq) con wc. Al primo piano ampio soggiorno/pranzo con angolo cottura, disimpegno, bagno e due camere da letto. Ampi balconi su due lati. NO GAS, impianto fotovoltaico 3 Kw, riscaldamento a radianti a pavimento, predisposizione VMC localizzata (ricircolo dell'aria), predisposizione aspirazione centralizzata. Classe energetica A4. Ulteriori informazioni in ufficio. N.B.: le presenti informazioni non costituiscono elemento contrattuale.

    Riferimento: TC1110a2

    Tipologia: Appartamento

    Comune: Gatteo

    Zona: Fiumicino

    Cucina: Cucina a vista

    Camere: 2

    Bagni: 2

    Box: Triplo

    Piano: Su più livelli di 2

    Anno costruzione: 2026

    Stato conservazione: Nuovo

    Stato: In costruzione

    Spese cond. annue €:

    Riscaldamento: Autonomo

    Balconi 14 mq, Giardino di proprietà 30 mq, Predisposizione condizionatore, Predisposizione allarme

    Efficienza energetica
    Classe A4
    Prestazione energetica del fabbricato inverno estate