Vendita Attico a Montiano - Rif. ATC38f

Badia | 265.000,00 | Mq 119 | 3 | 2

Descrizione

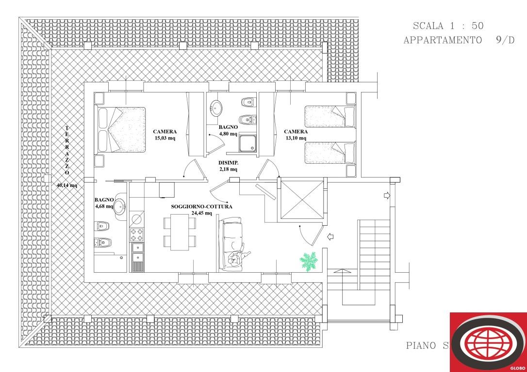
BADIA di Montiano (ATC38f): In ottima posizione, zona residenziale tranquilla e non lontano dai servizi, proponiamo trilocale posto all'ULTIMO PIANO, servito da ascensore, in piccola palazzina residenziale di recente costruzione ( anno 2012 ). L' appartamento è così composto: ingresso nell'ampio soggiorno con angolo cottura (c.a. 25 mq), disimpegno, camera matrimoniale con bagno privato e camera doppia, ulteriore bagno e balcone su tre lati di 40 mq. Completa il tutto un garage e cantina al piano interrato. Possibilità di scelta dei pavimenti e rivestimenti. Impianti a norma. Riscaldamento centralizzato di nuova concezione a pavimento. Predisposizione climatizzazione. Fotovoltaico per parti comuni e solare termico per acqua calda. N.B. Le presenti informazioni non costituiscono elemento contrattuale.

Dettagli

  • Riferimento: ATC38f
  • Tipologia: Attico
  • Comune: Montiano
  • Zona: Badia
  • Cucina: Angolo cottura
  • Camere: 2
  • Bagni: 2
  • Box: Singolo
  • Piano: Ultimo di 2
  • Anno costruzione: 2012
  • Stato conservazione: Nuovo
  • Stato: Libero
  • Spese cond. annue €:
  • Riscaldamento: Centralizzato gest. autonoma
  • Caratteristiche

    Ascensore, Balconi 40 mq, Cantina 5 mq, Predisposizione condizionatore

    Efficienza energetica

    Classe B

    Localizzazione - Montiano

    Richiedi informazioni

    Via Polenta, 26)

    47521 Cesena (FC)

    0547.631708

    Vendite     Affitti

    Ai sensi e per gli effetti degli articoli 13 e 6 del Regolamento UE 2016/679, dichiaro di aver preso visione dell’informativa di Agenzia Globo di Garavelli Gianni & C. Sas per il trattamento dei dati personali.

    Via Polenta, 26 - 47521 Cesena (FC) - Telefono 0547.631708 - Email info@agenziaimmobiliareglobo.it


    Vendita Attico a Montiano - Rif. ATC38f

    3 | Mq 119 | 265.000,00

    Montiano

    BADIA di Montiano (ATC38f): In ottima posizione, zona residenziale tranquilla e non lontano dai servizi, proponiamo trilocale posto all'ULTIMO PIANO, servito da ascensore, in piccola palazzina residenziale di recente costruzione ( anno 2012 ). L' appartamento è così composto: ingresso nell'ampio soggiorno con angolo cottura (c.a. 25 mq), disimpegno, camera matrimoniale con bagno privato e camera doppia, ulteriore bagno e balcone su tre lati di 40 mq. Completa il tutto un garage e cantina al piano interrato. Possibilità di scelta dei pavimenti e rivestimenti. Impianti a norma. Riscaldamento centralizzato di nuova concezione a pavimento. Predisposizione climatizzazione. Fotovoltaico per parti comuni e solare termico per acqua calda. N.B. Le presenti informazioni non costituiscono elemento contrattuale.

    Riferimento: ATC38f

    Tipologia: Attico

    Comune: Montiano

    Zona: Badia

    Cucina: Angolo cottura

    Camere: 2

    Bagni: 2

    Box: Singolo

    Piano: Ultimo di 2

    Anno costruzione: 2012

    Stato conservazione: Nuovo

    Stato: Libero

    Spese cond. annue €:

    Riscaldamento: Centralizzato gest. autonoma

    Ascensore, Balconi 40 mq, Cantina 5 mq, Predisposizione condizionatore

    Efficienza energetica
    Classe B