Vendita Villa a schiera a Cesena - Rif. VSC496a7

Case Finali | 430.000,00 | Mq 159 | 6 | 2

Descrizione

CASE FINALI (VSC496a7): adiacente a tutti i servizi di prima necessità, in zona residenziale circondata dal verde proponiamo graziosa VILLETTA A SCHIERA CENTRALE di NUOVA COSTRUZIONE (possibilità di personalizzazione finiture interne) così composta:
- PIANO INTERRATO: locale ad uso cantina/tavernetta (15 mq) e ampio garage di 30 mq;
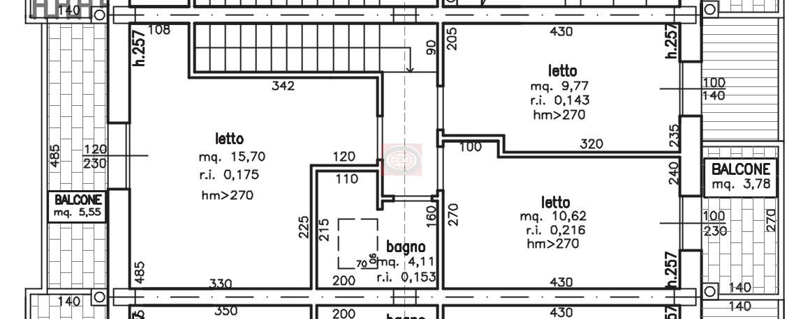
- PIANO TERRA: ingresso, su soggiorno (21 mq), cucina abitabile (11 mq), disimpegno, bagno, GIARDINETTO PRIVATO sul fronte (25 mq) e terrazzo rialzato di mq. 32 sul lato cucina (ideale per pranzi e cene all'aperto);
- PIANO PRIMO: disimpegno, 3 camere letto (mq 15,70 + 10,50 + 10), bagno e due balconi.
La costruzione è realizzata in BIOEDILIZIA con CARATTERISTICHE DI ALTO RISPARMIO ENERGETICO : impianto di VMC (ventilazione meccanica forzata), predisposizione di impianto di climatizzazione e di aspirazione centralizzata, riscaldamento a pavimento con pompa di calore, PANNELLI FOTOVOLTAICI (1,5 Kw). ---- N.B. le presenti informazioni non costituiscono elemento contrattuale.

Dettagli

  • Riferimento: VSC496a7
  • Tipologia: Villa a schiera
  • Comune: Cesena
  • Zona: Case Finali
  • Cucina: Cucina abitabile
  • Camere: 3
  • Bagni: 2
  • Box: Doppio
  • Piano: Su più livelli di 3
  • Anno costruzione: 2024
  • Stato conservazione: Nuovo
  • Stato: In costruzione
  • Spese cond. annue €:
  • Riscaldamento: Autonomo
  • Caratteristiche

    Terrazzi 32 mq, Balconi 11 mq, Cantina 15 mq, Giardino di proprietà 25 mq, Predisposizione condizionatore, Predisposizione allarme

    Efficienza energetica

    Classe A4

    Prestazione energetica del fabbricato inverno estate

    Localizzazione - Cesena

    Richiedi informazioni

    Via Polenta, 26)

    47521 Cesena (FC)

    0547.631708

    Vendite     Affitti

    Ai sensi e per gli effetti degli articoli 13 e 6 del Regolamento UE 2016/679, dichiaro di aver preso visione dell’informativa di Agenzia Globo di Garavelli Gianni & C. Sas per il trattamento dei dati personali.

    Via Polenta, 26 - 47521 Cesena (FC) - Telefono 0547.631708 - Email info@agenziaimmobiliareglobo.it


    Vendita Villa a schiera a Cesena - Rif. VSC496a7

    6 | Mq 159 | 430.000,00

    Cesena

    CASE FINALI (VSC496a7): adiacente a tutti i servizi di prima necessità, in zona residenziale circondata dal verde proponiamo graziosa VILLETTA A SCHIERA CENTRALE di NUOVA COSTRUZIONE (possibilità di personalizzazione finiture interne) così composta:
    - PIANO INTERRATO: locale ad uso cantina/tavernetta (15 mq) e ampio garage di 30 mq;
    - PIANO TERRA: ingresso, su soggiorno (21 mq), cucina abitabile (11 mq), disimpegno, bagno, GIARDINETTO PRIVATO sul fronte (25 mq) e terrazzo rialzato di mq. 32 sul lato cucina (ideale per pranzi e cene all'aperto);
    - PIANO PRIMO: disimpegno, 3 camere letto (mq 15,70 + 10,50 + 10), bagno e due balconi.
    La costruzione è realizzata in BIOEDILIZIA con CARATTERISTICHE DI ALTO RISPARMIO ENERGETICO : impianto di VMC (ventilazione meccanica forzata), predisposizione di impianto di climatizzazione e di aspirazione centralizzata, riscaldamento a pavimento con pompa di calore, PANNELLI FOTOVOLTAICI (1,5 Kw). ---- N.B. le presenti informazioni non costituiscono elemento contrattuale.

    Riferimento: VSC496a7

    Tipologia: Villa a schiera

    Comune: Cesena

    Zona: Case Finali

    Cucina: Cucina abitabile

    Camere: 3

    Bagni: 2

    Box: Doppio

    Piano: Su più livelli di 3

    Anno costruzione: 2024

    Stato conservazione: Nuovo

    Stato: In costruzione

    Spese cond. annue €:

    Riscaldamento: Autonomo

    Terrazzi 32 mq, Balconi 11 mq, Cantina 15 mq, Giardino di proprietà 25 mq, Predisposizione condizionatore, Predisposizione allarme

    Efficienza energetica
    Classe A4
    Prestazione energetica del fabbricato inverno estate