Vendita Villa a schiera a Cesena - Rif. VSC515

Macerone | 255.000,00 | Mq 157 | 3 | 1

Descrizione

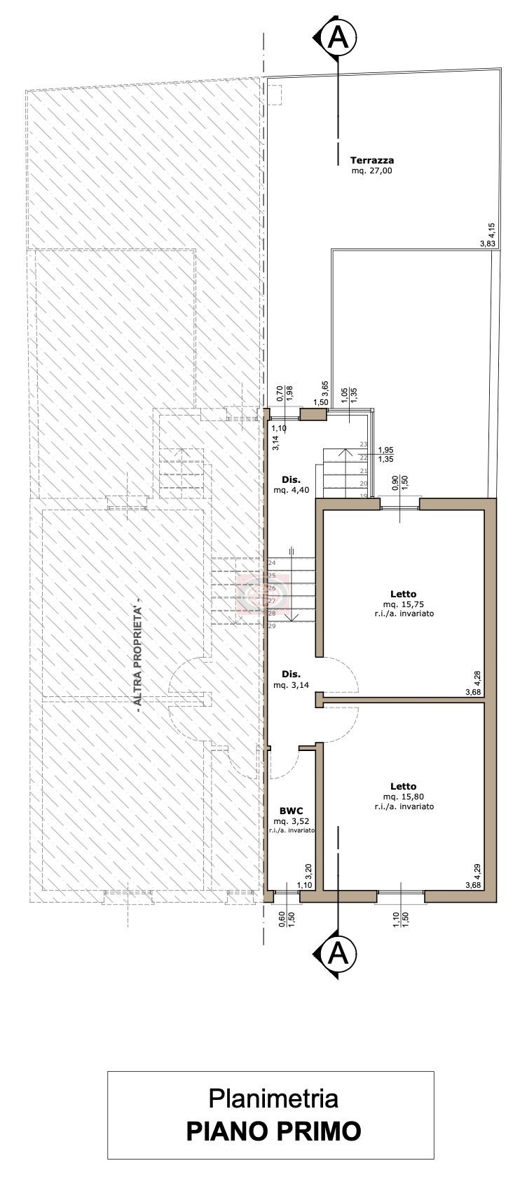
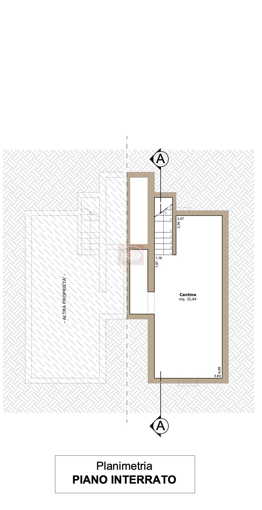
CESENA ( VSC515 ): UN NIDO TRA LA CITTA' E IL MARE: La Tua Casa Ideale tra Cesena e Cesenatico! Sogni una vita che unisca la praticità della città a portata di mano al fascino della riviera? Abbiamo trovato la soluzione perfetta per te! .. Ti presentiamo una splendida casa abbinata, strategicamente situata nel cuore della Romagna, a circa metà strada tra la storica Cesena e la vivace Cesenatico. - POSIZIONE TOP: Casa abbinata in zona intermedia, perfetta per chi vuole essere vicino al centro di Cesena e alle spiagge di Cesenatico, oltre ad avere accesso immediato alle principali vie di comunicazione (secante e autostrada). - PRONTA SUBITO: Immobile abitabile, ristrutturato nel 2012 con aggiornamenti recenti (caldaia a condensazione 2022, impianto elettrico). - SPAZI FUNZIONALI: Ampia zona giorno con angolo cottura (30 mq), due matrimoniali da 16 mq., cantina (oltre 30 mq), lavanderia e ricovero biciclette/sala hobby ( 18 mq. )- ESTERNI E RELAX: Goditi la vita all'aperto grazie ai generosi spazi esterni: Corte Privata e Portico: circa 40 mq. di corte pavimentata, ideali per cene all'aperto e momenti conviviali; TERRAZZO SOLARIUM: una terrazza di ben 27 mq. con un magnifico affaccio sulla campagna romagnola, perfetta per prendere il sole e rilassarsi in totale privacy. - COMFORT INCLUSO: impianto di allarme, predisposizione climatizzazione, venduta parzialmente arredata. - Contattaci ora per scoprire il tuo nuovo nido tra città e riviera! – NB: le presenti informazioni non costituiscono elemento contrattuale.

Dettagli

  • Riferimento: VSC515
  • Tipologia: Villa a schiera
  • Comune: Cesena
  • Zona: Macerone
  • Cucina: Angolo cottura
  • Camere: 2
  • Bagni: 1
  • Box: Posto auto scoperto
  • Piano: Su più livelli di 2
  • Anno costruzione:
  • Stato conservazione: Discreto
  • Stato: Libero
  • Spese cond. annue €:
  • Riscaldamento: Autonomo
  • Caratteristiche

    Terrazzi, Cantina 33 mq, Giardino di proprietà 36 mq, Predisposizione condizionatore, Allarme

    Efficienza energetica

    Localizzazione - Cesena

    Richiedi informazioni

    Via Polenta, 26)

    47521 Cesena (FC)

    0547.631708

    Vendite     Affitti

    Ai sensi e per gli effetti degli articoli 13 e 6 del Regolamento UE 2016/679, dichiaro di aver preso visione dell’informativa di Agenzia Globo di Garavelli Gianni & C. Sas per il trattamento dei dati personali.

    Via Polenta, 26 - 47521 Cesena (FC) - Telefono 0547.631708 - Email info@agenziaimmobiliareglobo.it


    Vendita Villa a schiera a Cesena - Rif. VSC515

    3 | Mq 157 | 255.000,00

    Cesena

    CESENA ( VSC515 ): UN NIDO TRA LA CITTA' E IL MARE: La Tua Casa Ideale tra Cesena e Cesenatico! Sogni una vita che unisca la praticità della città a portata di mano al fascino della riviera? Abbiamo trovato la soluzione perfetta per te! .. Ti presentiamo una splendida casa abbinata, strategicamente situata nel cuore della Romagna, a circa metà strada tra la storica Cesena e la vivace Cesenatico. - POSIZIONE TOP: Casa abbinata in zona intermedia, perfetta per chi vuole essere vicino al centro di Cesena e alle spiagge di Cesenatico, oltre ad avere accesso immediato alle principali vie di comunicazione (secante e autostrada). - PRONTA SUBITO: Immobile abitabile, ristrutturato nel 2012 con aggiornamenti recenti (caldaia a condensazione 2022, impianto elettrico). - SPAZI FUNZIONALI: Ampia zona giorno con angolo cottura (30 mq), due matrimoniali da 16 mq., cantina (oltre 30 mq), lavanderia e ricovero biciclette/sala hobby ( 18 mq. )- ESTERNI E RELAX: Goditi la vita all'aperto grazie ai generosi spazi esterni: Corte Privata e Portico: circa 40 mq. di corte pavimentata, ideali per cene all'aperto e momenti conviviali; TERRAZZO SOLARIUM: una terrazza di ben 27 mq. con un magnifico affaccio sulla campagna romagnola, perfetta per prendere il sole e rilassarsi in totale privacy. - COMFORT INCLUSO: impianto di allarme, predisposizione climatizzazione, venduta parzialmente arredata. - Contattaci ora per scoprire il tuo nuovo nido tra città e riviera! – NB: le presenti informazioni non costituiscono elemento contrattuale.

    Riferimento: VSC515

    Tipologia: Villa a schiera

    Comune: Cesena

    Zona: Macerone

    Cucina: Angolo cottura

    Camere: 2

    Bagni: 1

    Box: Posto auto scoperto

    Piano: Su più livelli di 2

    Anno costruzione:

    Stato conservazione: Discreto

    Stato: Libero

    Spese cond. annue €:

    Riscaldamento: Autonomo

    Terrazzi, Cantina 33 mq, Giardino di proprietà 36 mq, Predisposizione condizionatore, Allarme

    Efficienza energetica