Vendita Villa bifamiliare a Cesena - Rif. BTC304

Case Finali | 520.000,00 | Mq 180 | 5 | 3

Descrizione

Cesena - Case Finali (BTC304): in zona residenziale di nuova realizzazione, proponiamo porzione di bifamiliare al grezzo avanzato, disposta su due livelli oltre ad ampio sottotetto. La porzione in oggetto e così disposta:
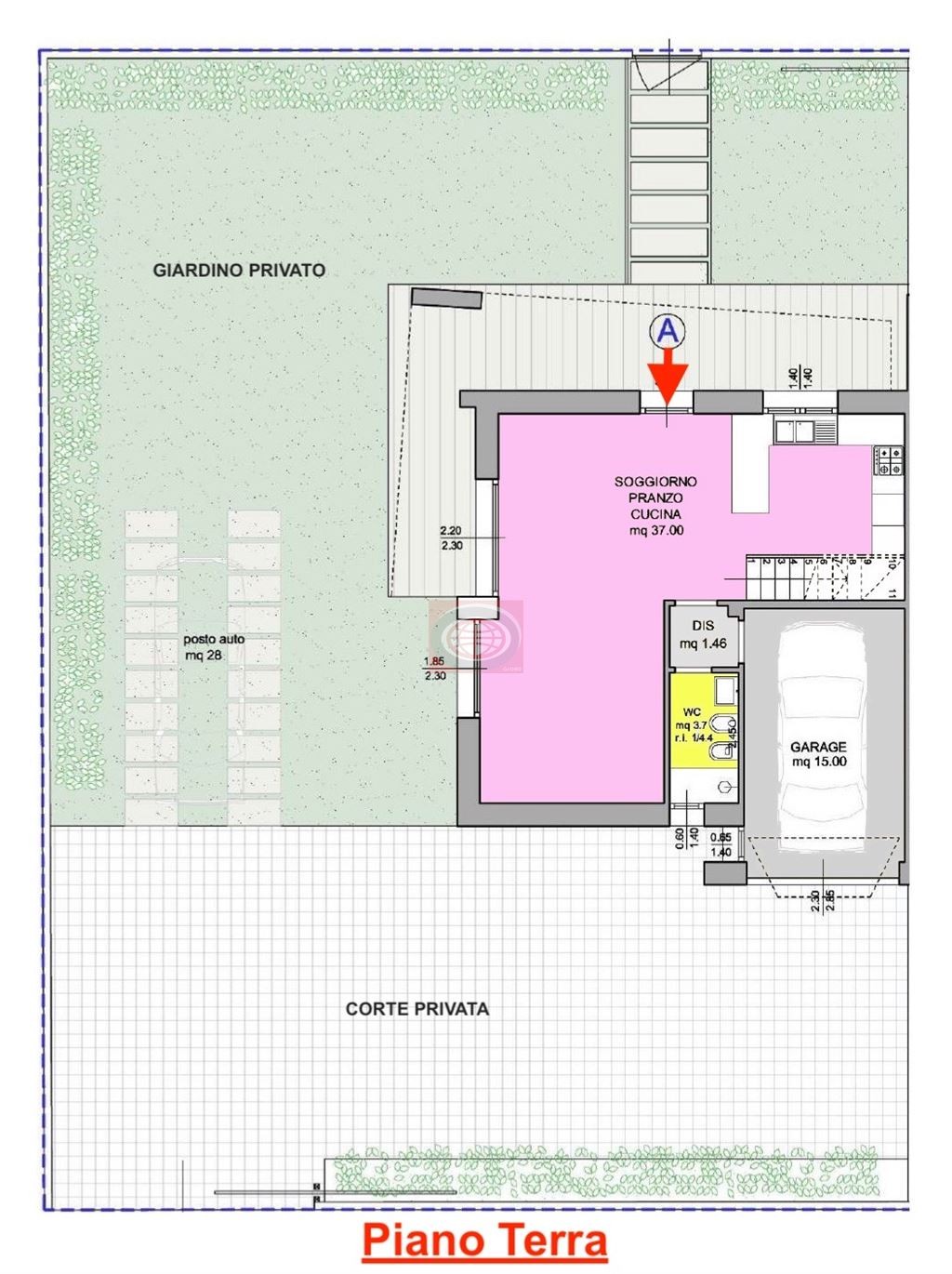
PIANO TERRA - ingresso su zona giorno open-space di 37 mq con zona cottura a vista con affaccio sul giardino privato di oltre 200 mq con area per posti auto, bagno e garage;
PIANO PRIMO - camera padronale con cabina armadio e bagno privato per un totale di oltre 20 mq, due camerette (mq 10 + 9,5), ulteriore bagno, 2 balconi;
PIANO MANSARDATO: ampio vano di c.a. 35 mq (dove poter realizzare ulteriore camera padronale o sala hobby) e un vano tecnico.
Si specifica che il prezzo proposto (euro 520.000,00) si riferisce con consegna al grezzo avanzato; l'acquisto è da privato (imposta al 2% sul prezzo di acquisto). ------ Ulteriori informazioni sui costi delle finiture in agenzia.
N.B.: Le presenti informazioni non costituiscono elemento contrattuale.

Dettagli

  • Riferimento: BTC304
  • Tipologia: Villa bifamiliare
  • Comune: Cesena
  • Zona: Case Finali
  • Cucina: Angolo cottura
  • Camere: 3
  • Bagni: 3
  • Box: Singolo
  • Piano: Su più livelli di 2
  • Anno costruzione: 2025
  • Stato conservazione: Nuovo
  • Stato:
  • Spese cond. annue €:
  • Riscaldamento: Autonomo
  • Caratteristiche

    Balconi 40 mq, Mansarda, Giardino di proprietà 200 mq, Predisposizione condizionatore

    Efficienza energetica

    Localizzazione - Cesena

    Richiedi informazioni

    Via Polenta, 26)

    47521 Cesena (FC)

    0547.631708

    Vendite     Affitti

    Ai sensi e per gli effetti degli articoli 13 e 6 del Regolamento UE 2016/679, dichiaro di aver preso visione dell’informativa di Agenzia Globo di Garavelli Gianni & C. Sas per il trattamento dei dati personali.

    Via Polenta, 26 - 47521 Cesena (FC) - Telefono 0547.631708 - Email info@agenziaimmobiliareglobo.it


    Vendita Villa bifamiliare a Cesena - Rif. BTC304

    5 | Mq 180 | 520.000,00

    Cesena

    Cesena - Case Finali (BTC304): in zona residenziale di nuova realizzazione, proponiamo porzione di bifamiliare al grezzo avanzato, disposta su due livelli oltre ad ampio sottotetto. La porzione in oggetto e così disposta:
    PIANO TERRA - ingresso su zona giorno open-space di 37 mq con zona cottura a vista con affaccio sul giardino privato di oltre 200 mq con area per posti auto, bagno e garage;
    PIANO PRIMO - camera padronale con cabina armadio e bagno privato per un totale di oltre 20 mq, due camerette (mq 10 + 9,5), ulteriore bagno, 2 balconi;
    PIANO MANSARDATO: ampio vano di c.a. 35 mq (dove poter realizzare ulteriore camera padronale o sala hobby) e un vano tecnico.
    Si specifica che il prezzo proposto (euro 520.000,00) si riferisce con consegna al grezzo avanzato; l'acquisto è da privato (imposta al 2% sul prezzo di acquisto). ------ Ulteriori informazioni sui costi delle finiture in agenzia.
    N.B.: Le presenti informazioni non costituiscono elemento contrattuale.

    Riferimento: BTC304

    Tipologia: Villa bifamiliare

    Comune: Cesena

    Zona: Case Finali

    Cucina: Angolo cottura

    Camere: 3

    Bagni: 3

    Box: Singolo

    Piano: Su più livelli di 2

    Anno costruzione: 2025

    Stato conservazione: Nuovo

    Stato:

    Spese cond. annue €:

    Riscaldamento: Autonomo

    Balconi 40 mq, Mansarda, Giardino di proprietà 200 mq, Predisposizione condizionatore

    Efficienza energetica